WOHNEN IN DER FABRIKSTRASSE

LILI ESPÁK UND JAKOB WEIN

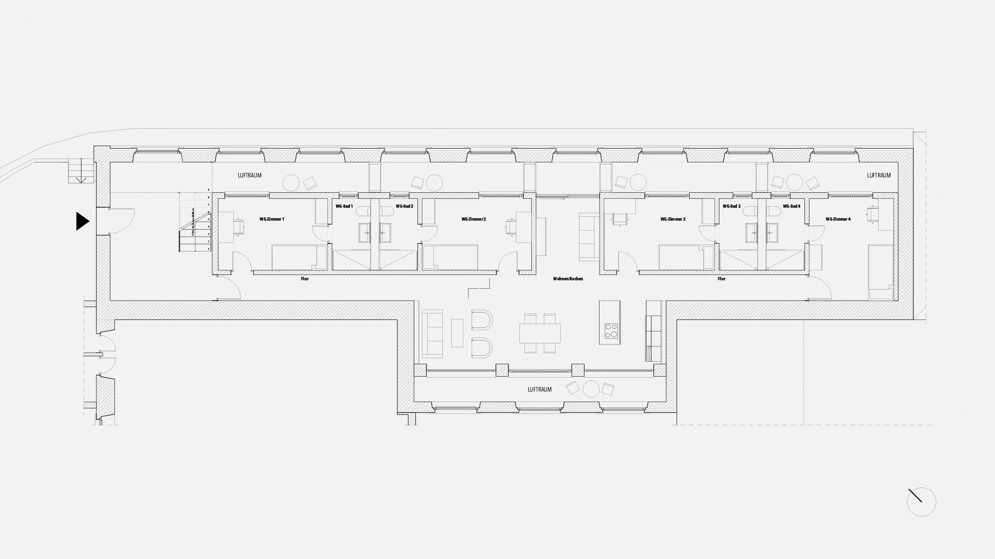
Ein stillgelegtes und denkmalgeschütztes Fabrikgebäude in Waldkirch wird in ein Wohngebäude für zwölf dort arbeitende Künstler umgebaut.
Unser Konzept „Haus in Haus“ ermöglicht einen behutsamen Umgang mit dem Bestand. Durch die Implementierung einer Doppelfassade entsteht ein einzigartiges Dämmkonzept, wobei die Außenfassade unberührt bleibt.
„Less is more“- unverputzte Hochlochziegelwände, geschliffener Estrich und eine Stahltreppe prägen unseren innenliegenden, dreigeschossigen Neubau, formen unsere Ästhetik und fördern eine umweltfreundliche Bauweise.

STUDIENARBEIT BETREUT VON PROFESSOREN HARALD ROSER UND HORST SONDERMANN UND DIPL.-ING. CORINNA BADER

 
 
 

LILI ESPÁK

2. SEMESTER

JAKOB WEIN

2. SEMESTER

 

„Less is more“–

Ludwig Mies van der Rohe

Zurück
Zurück

WOHNBEBAUUNG FASENENHOF

Weiter
Weiter

WOHNSIEDLUNG WALDHÄUSER-OST